MOYSSET Chloé Négociatrice
Télécharger la fiche

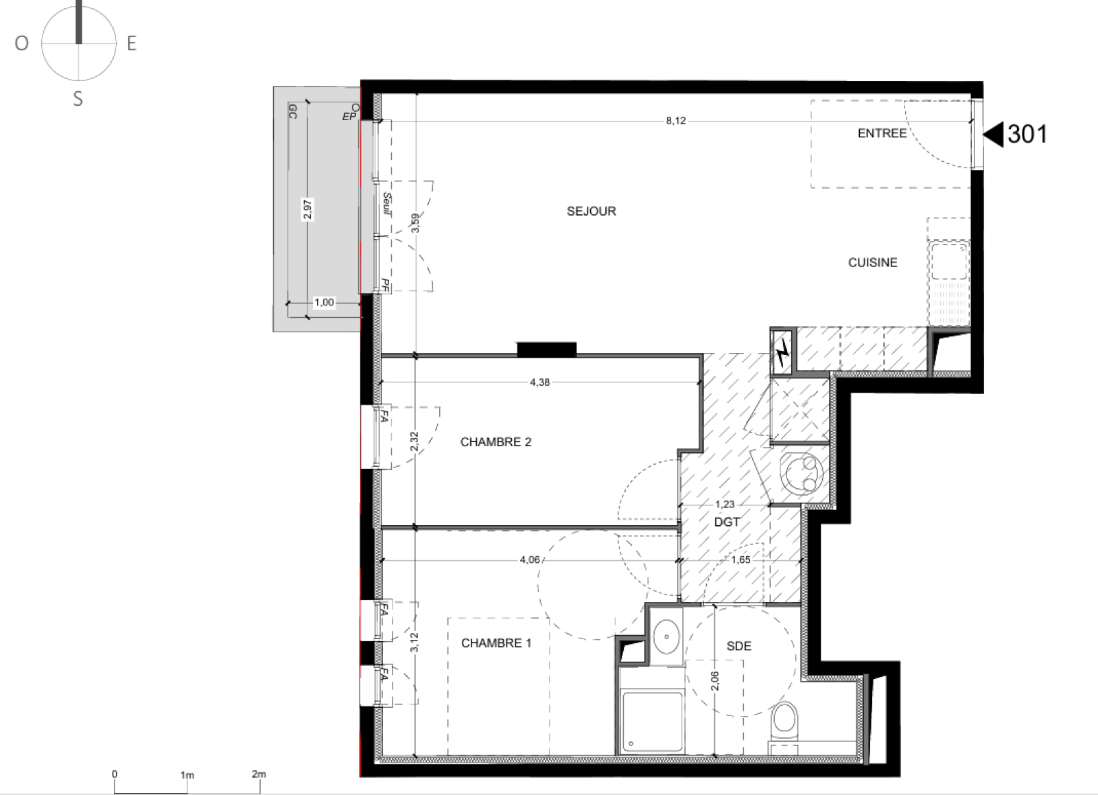
Appartement 3 pièce(s) 2 chambre(s) 61.04 m²

Nice (06300)
391 000 € Référence CHA22

A propos de ce bien

Votre futur chez-vous ou votre prochain investissement au cœur de Nice !

Découvrez ce superbe appartement neuf de type 3, en construction, situé au 3ème étage d’une résidence intimiste de 24 logements seulement, dans un quartier dynamique et en plein renouveau à l’est de Nice, à deux pas du Port et d'un campus universitaire. Livraison estimée le 15 mars 2026.

Idéalement orienté sud-ouest, l’appartement bénéficie d’une luminosité optimale tout au long de la journée et s’ouvre sur un bel espace extérieur pour profiter pleinement du climat méditerranéen.

La résidence est nichée dans une rue calme, tout en offrant une accessibilité maximale : commerces, écoles, restaurants, tout est à portée de pas. Envie de bouger ? La gare de Nice Riquier est à moins de 500 m, et la ligne 1 du tramway permet de rejoindre l’hypercentre en quelques minutes.

Confort et qualité de vie :

  • Terrasse ou balcon pour chaque appartement

  • Parking en sous-sol

  • Locaux vélos

  • Résidence sécurisée, à taille humaine

Un bien idéal aussi pour les investisseurs :

  • Loyer estimé : 970 € / mois

  • Rentabilité locative marché : 2,98 %

Vivez ou investissez dans le meilleur de Nice, entre ville, mer, et douceur de vivre.

Contactez-nous dès maintenant pour plus d’informations.

Caractéristiques de ce bien

  • Surface 61,04 m²
  • carrez 61,04 m²
  • séjour 20,63 m²
  • 2 chambre(s)
  • 1 salle(s) d'eau
  • construit en 2026
  • cuisine américaine
  • exposition Sud-Ouest
  • 1 niveau(x)
  • 3ème étage
  • 6 étage(s)
  • ascenseur
  • balcon

Diagnostics énergétiques

Consommation énergétique
A B C D E F G
Emission de gaz à effet de serre
A B C D E F G
DPE ANCIENNE VERSION

Informations financières

Prix de vente 391 000 € Les honoraires d'agence seront intégralement à la charge du vendeur

Informations de copropriété

Copropriété Oui
Lot n° 301
Statut du syndic Pas de procédure en cours

Autour du bien

  • Commerces et santé
  • Loisirs
  • Ecoles
  • Transports
  • Pratique

Calcul des mensualités

* Champs obligatoires